Балчуг. 3/2
Бизнес-центр класса AО бизнес-центре
Бизнес-центр Балчуг. 3/2 расположен в самом сердце Москвы, вблизи набережной Москвы-реки, что создаёт уникальное сочетание деловой среды и городской инфраструктуры. Здание полностью адаптировано под современное офисное использование: выполнена качественная отделка, обновлены инженерные сети, вентиляция и кондиционирование. Комплекс управляется собственником напрямую, что обеспечивает прозрачность условий аренды и оперативное решение всех вопросов эксплуатации.
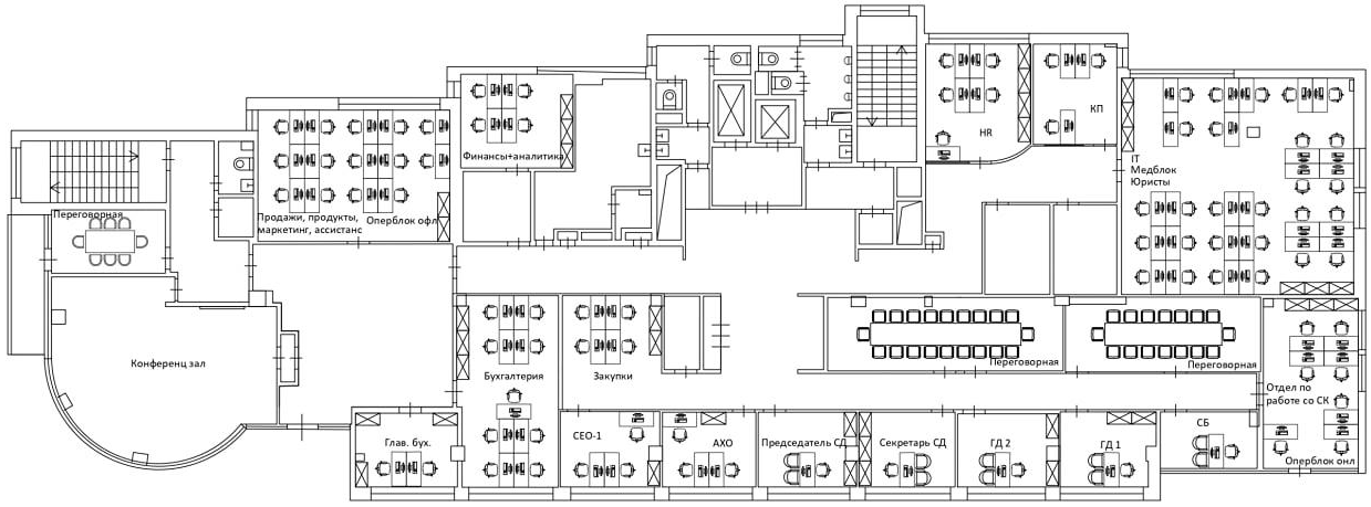
Помещения комплекса подходят для компаний разного масштаба: от малых офисов для стартапов до крупных блоков для корпоративных подразделений. Высокие потолки и панорамные окна создают светлое и просторное пространство, а гибкая планировка позволяет арендаторам организовать рабочие зоны, переговорные и зоны отдыха. Развитая внутренняя инфраструктура делает комплекс удобным для ежедневной работы сотрудников и приёма клиентов.
Где находится бизнес-центр и как до него добраться?
Адрес: Москва, ул. Балчуг, д. 3/2, в историческом центре города.
Пешая доступность до метро «Китай-город» и «Третьяковская» — 5–7 минут.
Удобный подъезд на автомобиле через улицу Балчуг. и соседние магистрали.
Парковочные места для сотрудников и гостей на территории комплекса и рядом.
Развитая транспортная сеть района, обеспечивающая быстрый доступ из разных районов Москвы.
Близость к набережной и ключевым деловым центрам города.
Свободные площади в аренду
| Этаж | Площадь | Налоги | Арендная ставка, м2/год |
За помещение в месяц |
Состояние | |
![]() |
4 этаж | 688 м2 | Включая НДС | 60 000 руб. | 3 440 000 руб. | Готово к въезду |
![]() |
5 этаж | 436 м2 | Включая НДС | 60 000 руб. | 2 180 000 руб. | Готово к въезду |
![]() |
6 этаж | 212 м2 | Включая НДС | 60 000 руб. | 1 060 000 руб. | Готово к въезду |
Бесплатная отрисовка планировочных решений с любым количеством правок
Преимущества бизнес-центра по адресу Балчуг. 3/2
Офисы в аренду готовы к въезду
Находится в пешей доступности от станций метро «Новокузнецкая» и «Площадь Революции»
С верхних этажей бизнес-центра
11 м/м
Одно из лучших предложений в округе
В окрестностях расположено несколько парков
Фотогалерея
Контакты
Какие характеристики и особенности имеет бизнес-центр?
БЦ Балчуг. 3/2 состоит из нескольких этажей с современными офисными помещениями различного формата. Внутренние зоны отличаются продуманной планировкой: доступны кабинеты, open space и комбинированные решения. Панорамные окна создают достаточное естественное освещение, а высокие потолки делают пространство светлым и визуально просторным. Современные инженерные системы обеспечивают комфортные условия для работы, включая вентиляцию, кондиционирование и электроснабжение.
Класс бизнес-центра и его соответствие современным стандартам
Класс комплекса: B+.
Современные системы кондиционирования и вентиляции.
Высокоскоростной интернет и телекоммуникации.
Противопожарные системы с датчиками и сигнализацией.
Соответствие современным стандартам офисных зданий.
Возможность подключения дополнительных инженерных сетей по требованию арендатора.
Что входит в инфраструктуру бизнес центра
БЦ оборудован всем необходимым для комфортной работы сотрудников и организации деловой среды. На территории или в шаговой доступности расположены кафе, столовые и зоны отдыха. Парковка обеспечивается как для сотрудников, так и для гостей, а зоны общего пользования позволяют проводить деловые встречи и переговоры.
Как снять или купить площадь
Прямая аренда и продажа помещений от собственника без посредников.
Свободные площади различного формата: небольшие офисы, средние блоки и целые этажи.
Возможность обсуждения планировки под корпоративные нужды.
Стандартный пакет документов для аренды или покупки.
Гибкие условия сроков аренды и эксплуатации помещений.
Поддержка арендаторов со стороны администрации комплекса.
Безопасность и системы контроля
Комплекс оснащён современной системой безопасности. Круглосуточная охрана, видеонаблюдение и электронная система контроля доступа обеспечивают защиту арендаторов и их имущества. Противопожарные системы включают датчики, сигнализацию и оповещение.
Кто является собственником и основными арендаторами в бизнес-центре
Управление комплексом осуществляется собственником напрямую.
Арендаторы: компании из сферы IT, консалтинга, финансовых услуг. и малого бизнеса.
Возможность размещения малых и средних предприятий.
Разнообразие офисных блоков по площади и формату.
Высокий уровень востребованности комплекса за счёт расположения и инфраструктуры.
Поддержка арендаторов и оперативное решение вопросов эксплуатации.
Как выглядит бизнес-центр внутри и снаружи
БЦ Балчуг. 3/2 имеет современный фасад, гармонично вписанный в архитектуру исторического центра. Вход оборудован представительской группой, внутренние помещения светлые, просторные и с качественной отделкой. Панорамные окна обеспечивают естественное освещение, а инженерные системы поддерживают комфортный микроклимат. Из окон открываются виды на набережную Москвы-реки и улицы Центрального округа, создавая приятную рабочую атмосферу для сотрудников и гостей.
Современные фасады и аккуратный внешний вид.
Просторные и светлые офисные помещения.
Нейтральная отделка, готовность к въезду и адаптации под корпоративный стиль.
Панорамные окна и естественное освещение.
Вид на набережную и центральные улицы города.


